Продава 1 - стаен апартамент
гр. Свищов ул."Стоян Ников"Оферта № 2702
Продава 1 - стаен апартамент
Продава 1 - стаен апартамент
Общ. Свищов / гр. Свищов
ул."Стоян Ников"
| Квадратура | 43 m2 |
| ✓ | Климатик |
| ✓ | Панелен |
Описание
1-стаен 43 м2, панелен, ул."Стоян Ников"
Цена 38 000 лева / 19 429,09 евро
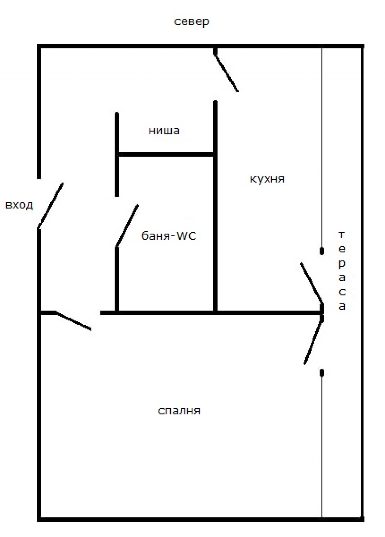
Разпределение: стая, кухня, баня-тоалетна, коридор и тераса. Изложение: изток.
Състояние: под-замазка/ламиниран паркет, стени-тапети, таван-латекс/изолационни пана.
Климатик 1 бр. Висок етаж без асансьор.
Маза 5,38 м2










