Продава Имоти Белене
гр. Белене центърОферта № 2706
Продава Имоти Белене
Продава Имоти Белене
Общ. Белене / гр. Белене
център
| Квадратура | 67 m2 |
| ✓ | Панелен |
Описание
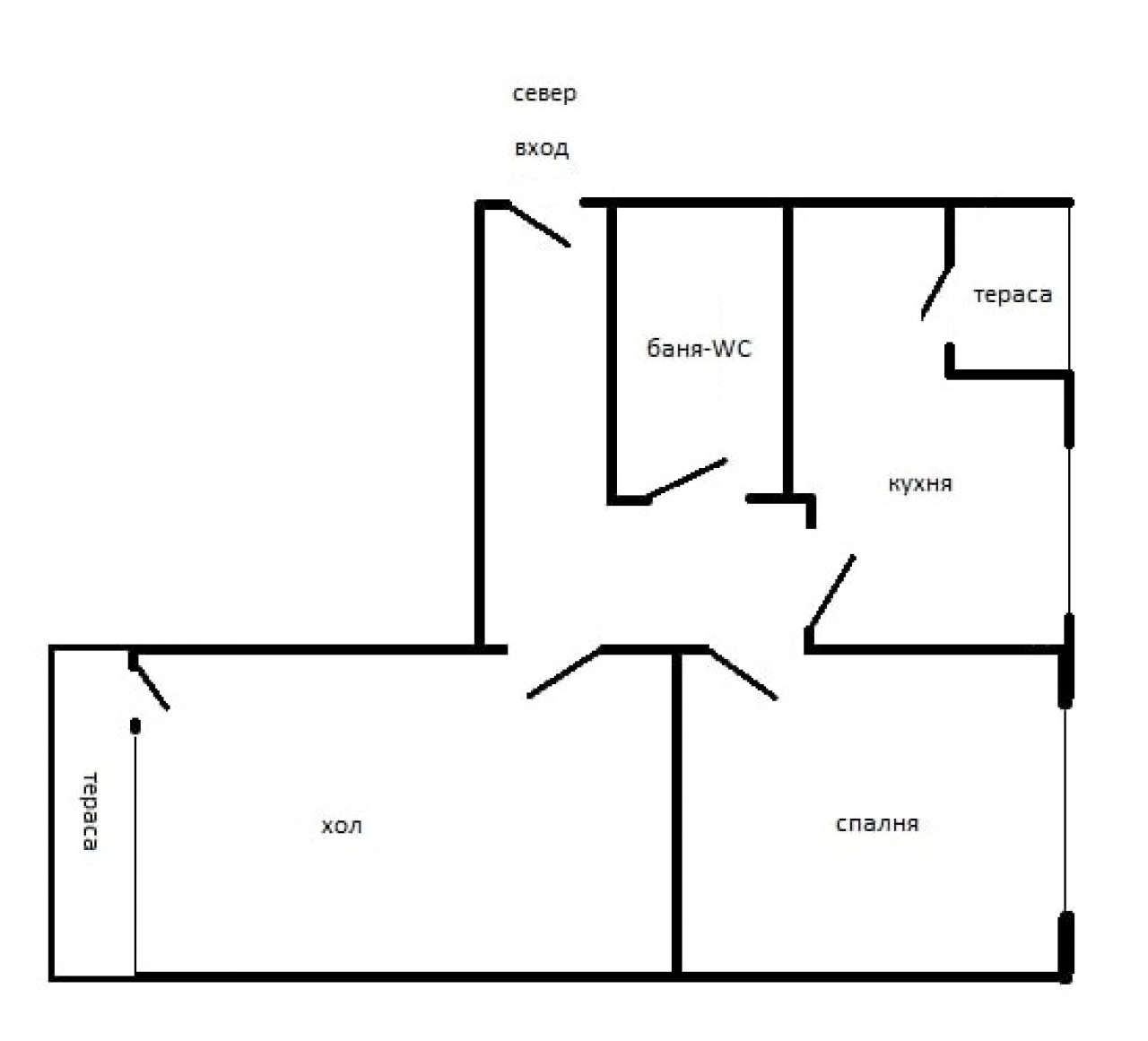
гр.Белене-Двустаен 67 м2, панелен, до Поделението
Цена 29 000 лева / 14 827,46 евро
Разпределение: спалня, хол, кухня, баня-тоалетна, коридор и две тераси. Изложение: изток/запад.
Състояние: под-замазка, стени-тапети, таван-латекс.
Маза 15.98 м2










